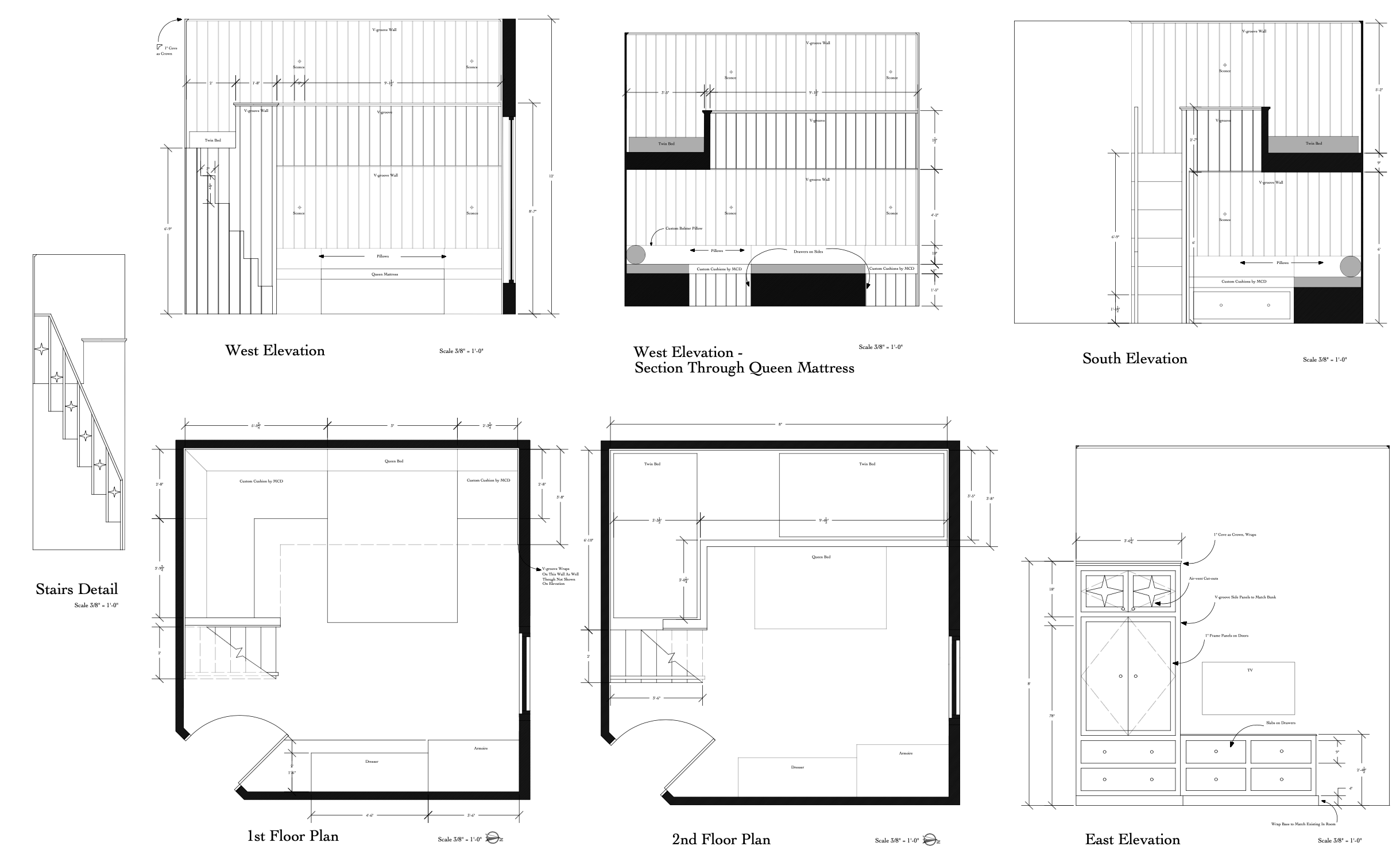
Custom Bunk Room — Millwork Drawings

Retrorenders

Aside from more photorealistic representations of a space, I like to work -as my style of choice- 2D and 3D renderings that are; some dreamlike yet without losing their purpose to convey the end result of an imagined and planned environment and that allow for more feeling to come into its understanding, and some only realistic just with a touch of evocative.

Before

Mezzanine addition

tall nYC Studio Apartment

Adding a more private area that feels connected to the rest of the home, creates a cozy lower-ceiling dining area, and gets great light and views of the outdoors.

The Serenity Project

Low-water Commercial terrace.

This drought-friendly façade yard and public back patio are part of a friendly and easy design for this non-profit’s periodic events and its in-house residents. - Los Feliz, CA

On addressing California’s new landscape potable water-use regulations.

New!

Artists Co-housing &

Exhibit space

SELECTED COLLAGE

Previous
Previous

Old World Lake House

Next
Next

Boto House